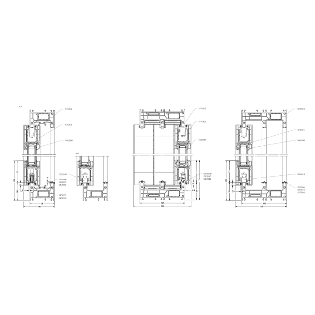
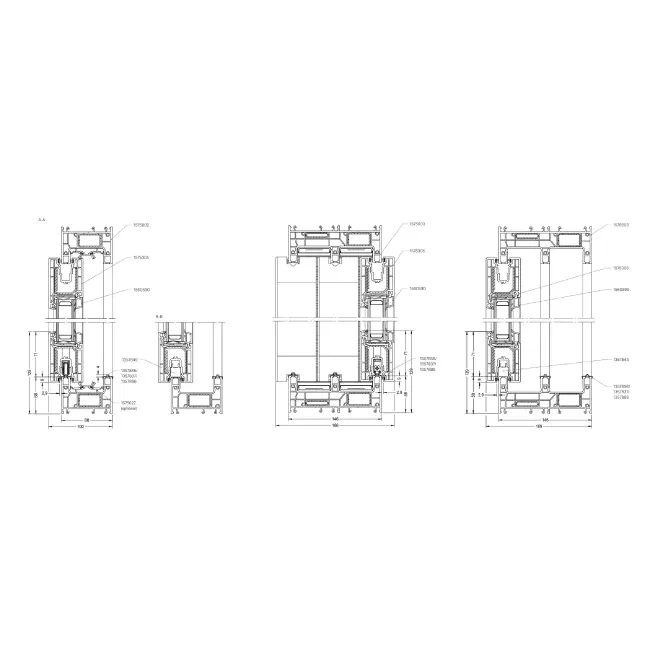
- Sistemska dubina: 80 mm – dvostruki okvir
- 146 mm – trostruki okvir
- Staklo: do 32mm
- Toplotna izolacija: 1.8 W/m2K
- Zvučna izolacija: do 33 dB
- Propustljivost vazduha: 4
- Vodopropusnost: 7A
- Otpornost na vetar: B2
/ Klizni sistemi / PVC klizni sistemi / Rehau Slinova
Rehau Slinova je moderan klizni sistem uskih linija, osmišljen da unese više svetlosti i elegancije u prostor. Sa minimalnom dubinom profila i mogućnošću velikih staklenih površina, ovaj sistem spaja savremeni dizajn sa funkcionalnošću
Rehau Slinova je moderan klizni sistem uskih linija, osmišljen da unese više svetlosti i elegancije u prostor. Sa minimalnom dubinom profila i mogućnošću velikih staklenih površina, ovaj sistem spaja savremeni dizajn sa funkcionalnošću. Odlikuje se dobrom toplotnom i zvučnom izolacijom, kao i visokim stepenom zrakonepropusnosti i vodonepropusnosti, što ga čini pogodnim i za zahtevnije klimatske uslove.
Čelična ojačanja unutar profila i mogućnost ugradnje sigurnosnih okova i stakala dodatno povećavaju otpornost sistema i obezbeđuju pouzdanost u svakodnevnoj upotrebi. Zahvaljujući jednostavnom rukovanju, vitkim linijama i prilagodljivosti različitim arhitektonskim konceptima, Rehau Slinova je idealan izbor za objekte koji traže sklad između estetike, komfora i dugotrajnosti.
Pokreni konfigurator i napravi kombinaciju po svojoj meri.
Koristimo kolačiće da bismo poboljšali vaše iskustvo pregledanja, pružili personalizovane oglase ili sadržaje i analizirali naš saobraćaj. Ako kliknete na dugme „Slažem se”, prihvatate našu upotrebu kolačića.
Prilagodite željene postavke:
Neophodni kolačići su obavezni da bi se omogućile osnovne funkcije ovog sajta, kao što su obezbeđivanje bezbednog prijavljivanja ili prilagođavanje željenih postavki saglasnosti. Ovi kolačići ne skladište nijedan podatak sa ličnim informacijama.
CloudFlare provides web performance and security solutions, enhancing site speed and protecting against threats.
: developers.cloudflare.com (opens in a new window)
Google reCAPTCHA helps protect websites from spam and abuse by verifying user interactions through challenges.
Analitički kolačići se koriste da bi se razumelo na koji način posetioci ostvaruju interakciju sa veb-sajtom.
Google Tag Manager simplifies the management of marketing tags on your website without code changes.
Funkcionalni kolačići pomažu u izvršavanju određenih funkcionalnosti nezavisnih proizvođača, na primer prikupljanje povratnih informacija ili deljenje sadržaja veb-sajta na društvenim mrežama.
WPForms is a user-friendly WordPress plugin for creating custom forms with drag-and-drop functionality.
Pronađite više informacija: Uslovi korišćenja i politika privatnosti