Futura

Futura_proizvod_pre_ugradnje Futura_proizvod_u_realnim_uslovima rehau-synego-80
Cena od 140€*

Futura predstavlja napredan spoj elegancije, udobnosti i visokih performansi, zahvaljujući renomiranom Rehau Synego profilu – jednom od najtraženijih profila u Evropi. Sa dubinom od 80 mm i 6-komornom strukturom, Futura donosi odličnu toplotnu i zvučnu izolaciju.

*Cena je za jednokrilni prozor, profil: Rehau Synego, dimenzije 800x1000mm, bez montaže, staklo 42mm Solar, okov: Winkhaus ActivPilot- sa PDV-om.
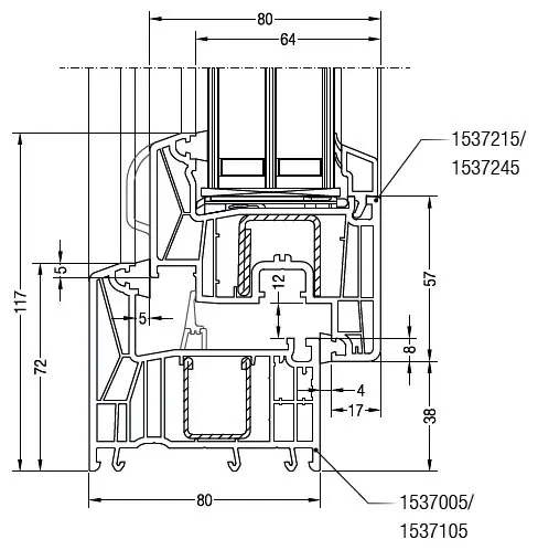
80 mm
Sistemska dubina
0.92 W/m2K
Toplotna izolacija
do 47 dB
Zvučna izolacija
Uskočno-klizni sistemi
Prozori
Balkonska vrata
Ulazna vrata

Detalji proizvoda

Futura predstavlja napredan spoj elegancije, udobnosti i visokih performansi, zahvaljujući renomiranom Rehau Synego profilu – jednom od najtraženijih profila u Evropi. Sa dubinom od 80 mm i 6-komornom strukturom, Futura donosi odličnu toplotnu i zvučnu izolaciju, povećanu sigurnost i mogućnost ugradnje troslojnog stakla. Osim toga, za veću otpornost na vremenske uslove i moderniji izgled, postoji mogućnost dodavanja aluminijumskih obloga spolja. Futura je namenjena onima koji ne pristaju na kompromise kada je u pitanju estetika, energetska efikasnost i dugovečnost.

Tehnička specifikacija

  • Sistemska dubina: 80 mm
  • Paket stakla – 42mm :
    • 4 mm Solar
    • 15 mm Argon
    • 4 mm Float
    • 15 mm Argon
    • 4 mm Low-E
  • Toplotna izolacija: 0.92 W/m2K
  • Zvučna izolacija: do 47 dB
  • Propustljivost vazduha: 4
  • Zaštita od provale: do RC3
  • Vodopropusnost: 9A
  • Otpornost na vetar: B5

Kreiraj stolariju koja ti se savršeno uklapa

Pokreni konfigurator i napravi kombinaciju po svojoj meri.

Pogledajte i:

Pošaljite upit
UKPP