- Sistemska dubina: 65 mm
- Staklo: do 59mm
- Toplotna izolacija: 1.3 W/m2K
- Zvučna izolacija: do 38 dB
- Propustljivost vazduha: 4
- Zaštita od provale: do RC3
- Vodopropusnost: E900
- Otpornost na vetar: C5
/ ALU stolarija / ALU prozori / Feal Termo 65
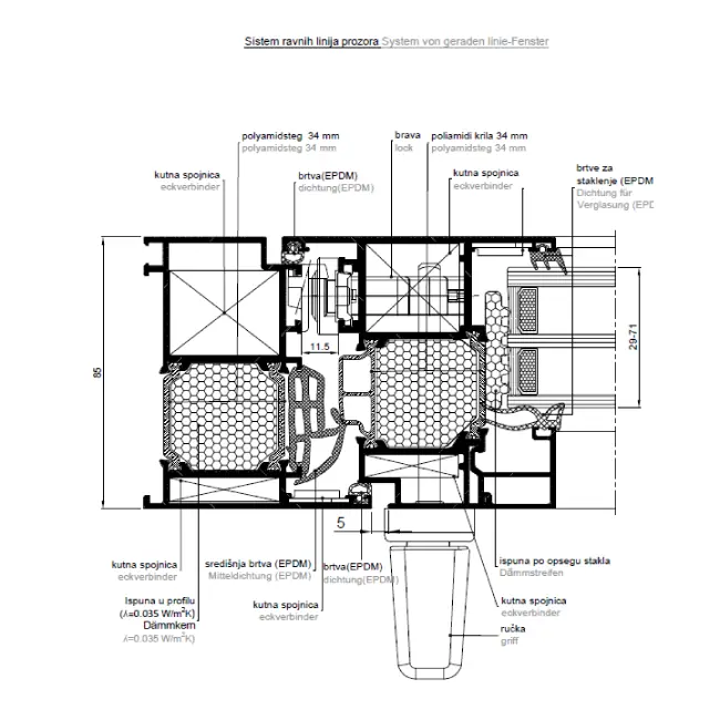
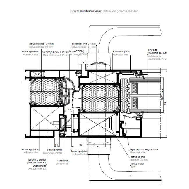
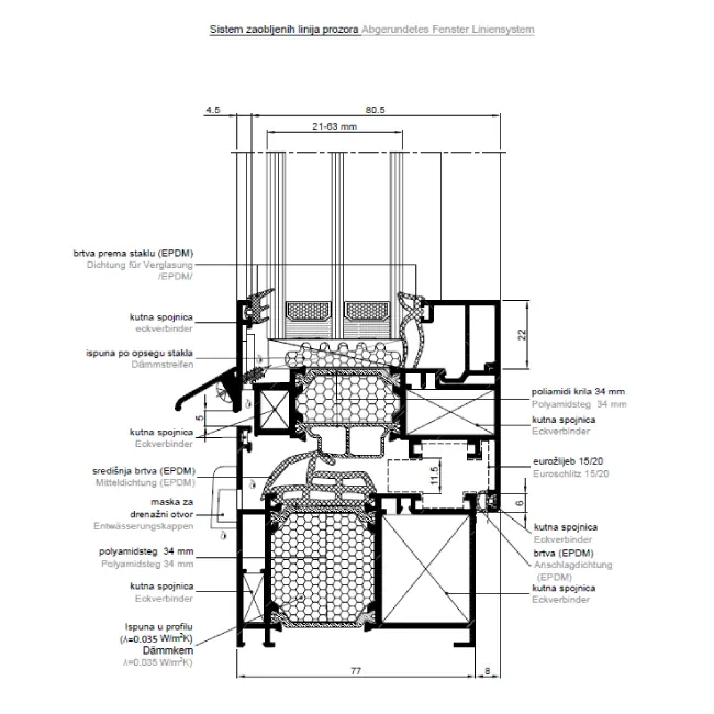
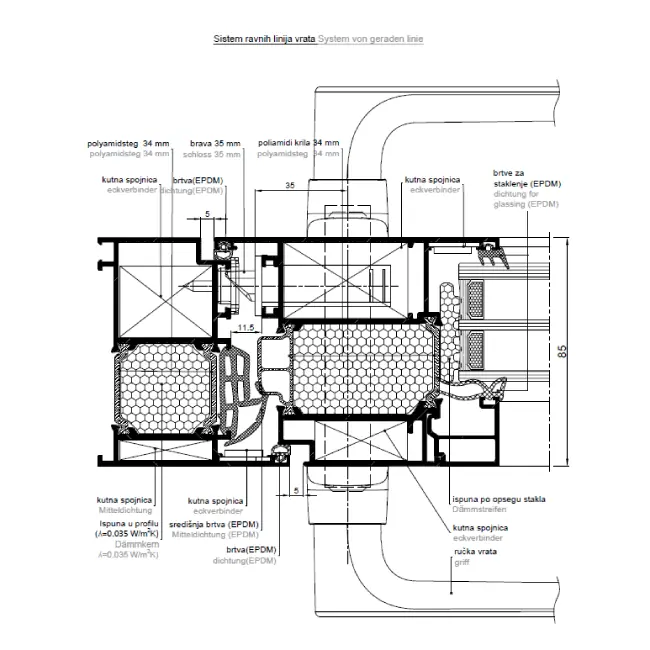
Feal Termo 65 aluminijumski profil predstavlja moderan sistem koji spaja eleganciju i napredne performanse. Sa ugradbenom dubinom od 65 mm i termo prekidom, obezbeđuje visok nivo toplotne i zvučne izolacije.
Feal Termo 65 aluminijumski profil predstavlja moderan sistem koji spaja eleganciju i napredne performanse. Sa ugradbenom dubinom od 65 mm i termo prekidom, obezbeđuje visok nivo toplotne i zvučne izolacije, čineći prostor energetski efikasnijim i prijatnijim za boravak.
Zahvaljujući čvrstini aluminijuma i stabilnoj konstrukciji, sistem omogućava izradu većih elemenata uz dugotrajnost i sigurnost, dok tanke i čiste linije profila daju poseban estetski pečat. Feal Termo 65 idealan je izbor za savremene stambene i poslovne projekte koji zahtevaju spoj funkcionalnosti i modernog dizajna.
Pokreni konfigurator i napravi kombinaciju po svojoj meri.
Koristimo kolačiće da bismo poboljšali vaše iskustvo pregledanja, pružili personalizovane oglase ili sadržaje i analizirali naš saobraćaj. Ako kliknete na dugme „Slažem se”, prihvatate našu upotrebu kolačića.
Prilagodite željene postavke:
Neophodni kolačići su obavezni da bi se omogućile osnovne funkcije ovog sajta, kao što su obezbeđivanje bezbednog prijavljivanja ili prilagođavanje željenih postavki saglasnosti. Ovi kolačići ne skladište nijedan podatak sa ličnim informacijama.
CloudFlare provides web performance and security solutions, enhancing site speed and protecting against threats.
: developers.cloudflare.com (opens in a new window)
Google reCAPTCHA helps protect websites from spam and abuse by verifying user interactions through challenges.
Analitički kolačići se koriste da bi se razumelo na koji način posetioci ostvaruju interakciju sa veb-sajtom.
Google Tag Manager simplifies the management of marketing tags on your website without code changes.
Funkcionalni kolačići pomažu u izvršavanju određenih funkcionalnosti nezavisnih proizvođača, na primer prikupljanje povratnih informacija ili deljenje sadržaja veb-sajta na društvenim mrežama.
WPForms is a user-friendly WordPress plugin for creating custom forms with drag-and-drop functionality.
Pronađite više informacija: Uslovi korišćenja i politika privatnosti