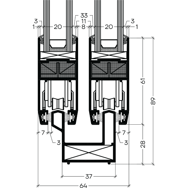
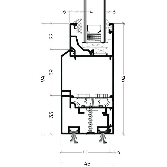
- Sistemska dubina: 38 mm
- Staklo: do 20 mm
- Propusnost zraka: 4
- Vodonepropusnost: 7A
- Otpornost na vjetar: C5
/ ALU stolarija / ALU pregradna vrata / Profilink Cold 38
Aluminijski profil Profilink Cold 38 dizajniran je za prostore gdje energetska učinkovitost nije primarni zahtjev, ali su potrebni funkcionalnost i moderan izgled. Sa dubinom sustava od 38 mm i bez toplinskog prekida, ovaj sustav nudi pouzdanu čvrstoću aluminija i jednostavnu prilagodljivost različitim vrstama otvora.
Aluminijski profil Profilink Cold 38 dizajniran je za prostore gdje energetska učinkovitost nije primarni fokus, ali su potrebni funkcionalnost i moderan izgled. Sa dubinom sustava od 38 mm i bez toplinskog prekida, sustav pruža pouzdanu čvrstoću aluminija i jednostavnost oblikovanja u različite vrste otvora.
Zahvaljujući tankim linijama i jednostavnoj konstrukciji, Profilink Cold 38 idealan je za unutarnje pregrade, balkonska i sporedna vrata, kao i za prostore u toplijim klimama. Njegova fleksibilnost i pristupačna cijena čine ga praktičnim rješenjem za širok raspon primjena u stambenim i poslovnim objektima.
Pokrenite konfigurator i dizajnirajte prilagođenu kombinaciju prema vašim potrebama
Koristimo kolačiće da bismo poboljšali vaše iskustvo pregledanja, pružili personalizovane oglase ili sadržaje i analizirali naš saobraćaj. Ako kliknete na dugme „Slažem se”, prihvatate našu upotrebu kolačića.
Prilagodite željene postavke:
Neophodni kolačići su obavezni da bi se omogućile osnovne funkcije ovog sajta, kao što su obezbeđivanje bezbednog prijavljivanja ili prilagođavanje željenih postavki saglasnosti. Ovi kolačići ne skladište nijedan podatak sa ličnim informacijama.
CloudFlare provides web performance and security solutions, enhancing site speed and protecting against threats.
: developers.cloudflare.com (opens in a new window)
Google reCAPTCHA helps protect websites from spam and abuse by verifying user interactions through challenges.
Analitički kolačići se koriste da bi se razumelo na koji način posetioci ostvaruju interakciju sa veb-sajtom.
Google Tag Manager simplifies the management of marketing tags on your website without code changes.
Funkcionalni kolačići pomažu u izvršavanju određenih funkcionalnosti nezavisnih proizvođača, na primer prikupljanje povratnih informacija ili deljenje sadržaja veb-sajta na društvenim mrežama.
WPForms is a user-friendly WordPress plugin for creating custom forms with drag-and-drop functionality.
Pronađite više informacija: Uvjeti korištenja