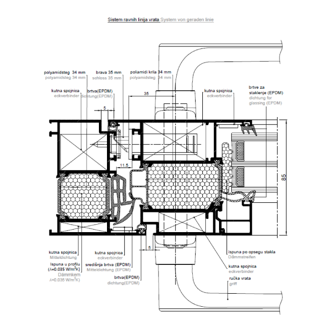
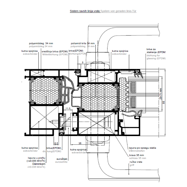
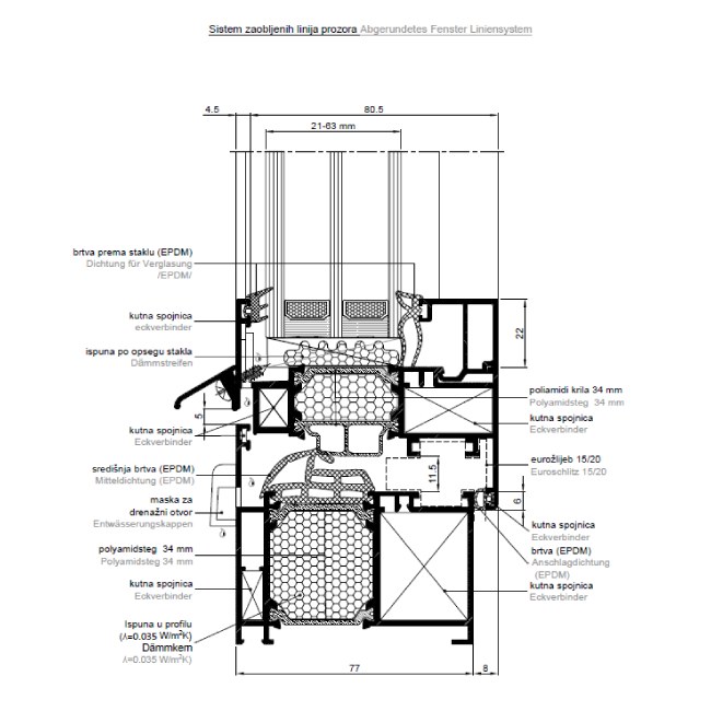
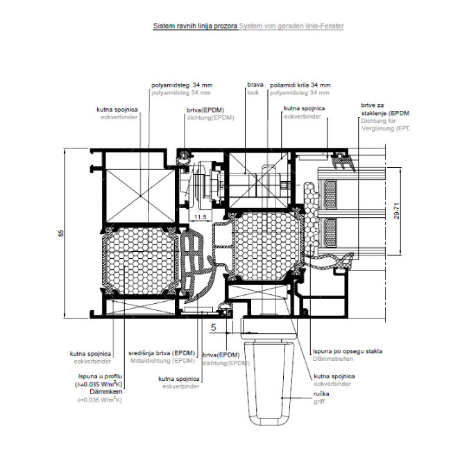
- Dubina sustava: 85 mm
- Staklo: do 71 mm
- Toplinska izolacija: 1,0 W/m²K
- Zvukovna izolacija: do 50 dB
- Propusnost zraka: 4
- Zaštita od provale: do RC4
- Vodonepropusnost: E1500
- Otpornost na vjetar: C5
/ ALU stolarija / Feal Termo 85
Feal Termo 85 aluminijski profil dizajniran je za projekte koji zahtijevaju vrhunsku energetsku učinkovitost i maksimalnu udobnost. S ugradbenom dubinom od 85 mm i širokim termo prekidom, ovaj sustav pruža izvrsnu toplinsku i zvučnu izolaciju, značajno smanjuje gubitke energije i osigurava stabilnu unutarnju klimu.
Feal Termo 85 aluminijski profil dizajniran je za projekte koji zahtijevaju vrhunsku energetsku učinkovitost i maksimalnu udobnost. S ugradbenom dubinom od 85 mm i širokim termo prekidom, ovaj sustav pruža izvanrednu toplinsku i zvučnu izolaciju, značajno smanjuje gubitke energije i osigurava stabilnu unutarnju klimu.
Robusna aluminijska konstrukcija omogućuje izradu velikih prozorskih i vratnih elemenata uz visoku razinu sigurnosti, dok elegantne, tanke linije profila doprinose suvremenom estetskom dojmu. Feal Termo 85 idealan je izbor za stambene i poslovne objekte koji teže najvišim standardima trajnosti, dizajna i udobnosti.
Pokrenite konfigurator i dizajnirajte prilagođenu kombinaciju prema vašim potrebama
Koristimo kolačiće da bismo poboljšali vaše iskustvo pregledanja, pružili personalizovane oglase ili sadržaje i analizirali naš saobraćaj. Ako kliknete na dugme „Slažem se”, prihvatate našu upotrebu kolačića.
Prilagodite željene postavke:
Neophodni kolačići su obavezni da bi se omogućile osnovne funkcije ovog sajta, kao što su obezbeđivanje bezbednog prijavljivanja ili prilagođavanje željenih postavki saglasnosti. Ovi kolačići ne skladište nijedan podatak sa ličnim informacijama.
CloudFlare provides web performance and security solutions, enhancing site speed and protecting against threats.
: developers.cloudflare.com (opens in a new window)
Google reCAPTCHA helps protect websites from spam and abuse by verifying user interactions through challenges.
Analitički kolačići se koriste da bi se razumelo na koji način posetioci ostvaruju interakciju sa veb-sajtom.
Google Tag Manager simplifies the management of marketing tags on your website without code changes.
Funkcionalni kolačići pomažu u izvršavanju određenih funkcionalnosti nezavisnih proizvođača, na primer prikupljanje povratnih informacija ili deljenje sadržaja veb-sajta na društvenim mrežama.
WPForms is a user-friendly WordPress plugin for creating custom forms with drag-and-drop functionality.
Pronađite više informacija: Uvjeti korištenja