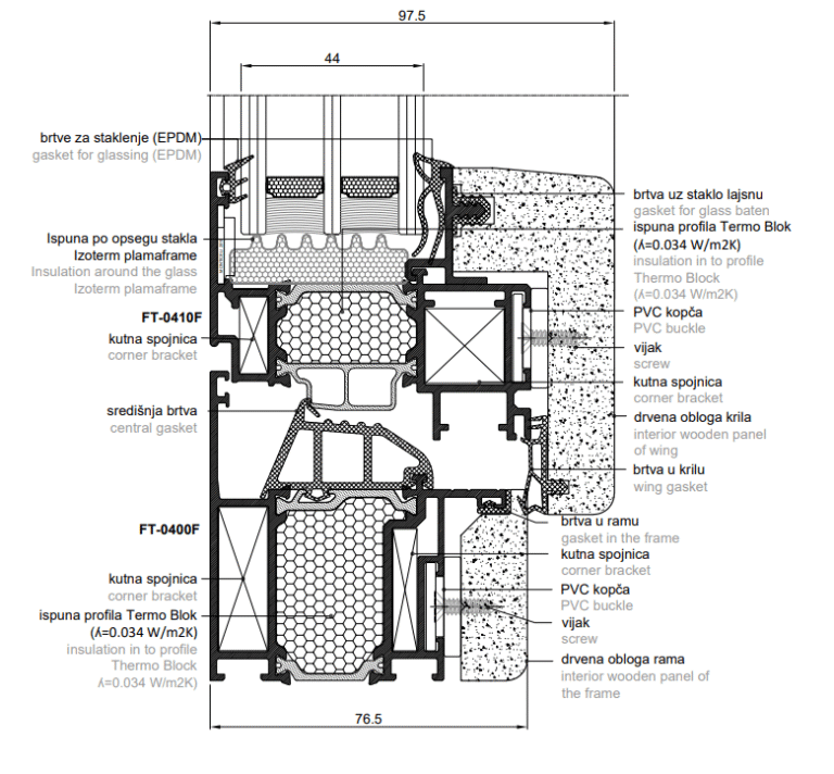
- Dubina sustava: 76,5 mm
- Staklo: do 44 mm
- Toplinska izolacija: 0,8 W/m²K
- Zvukovna izolacija: do 42 dB
- Propusnost zraka: 4
- Zaštita od provale: do RC3
- Vodonepropusnost: 9A
- Otpornost na vjetar: C5
/ ALU stolarija / Feal Termo 75 DA
Feal Termo 75 DA kombinira najbolje iz oba svijeta: prirodnu toplinu i eleganciju drva s unutarnje strane, s izdržljivošću aluminija s vanjske strane. Ova kombinacija stvara sustav prozora koji nudi savršen balans estetike, udobnosti i dugotrajne izvedbe.
Feal Termo 75 DA kombinira najbolje iz oba svijeta: prirodnu toplinu i eleganciju drva s unutarnje strane, s izdržljivošću aluminija s vanjske strane. Ova kombinacija stvara sustav prozora koji nudi savršen balans estetike, udobnosti i dugotrajne izvedbe.
Zahvaljujući trostrukoj toplinskoj izolaciji i visokokvalitetnim brtvama, Feal Termo 75 DA pruža izvrsnu toplinsku i zvučnu izolaciju, održavajući ugodnu unutarnju klimu tijekom cijele godine.
Drveni interijer dodaje osjećaj prirodne topline, dok aluminijski vanjski sloj osigurava zaštitu od vremenskih uvjeta i minimalno održavanje.
S modernim dizajnom, širokim mogućnostima prilagodbe i visokim standardima energetske učinkovitosti, Feal Termo 75 DA idealan je izbor za one koji traže luksuz, udobnost i trajnu vrijednost u svom domu ili poslovnom prostoru.
Pokrenite konfigurator i dizajnirajte prilagođenu kombinaciju prema vašim potrebama
Koristimo kolačiće da bismo poboljšali vaše iskustvo pregledanja, pružili personalizovane oglase ili sadržaje i analizirali naš saobraćaj. Ako kliknete na dugme „Slažem se”, prihvatate našu upotrebu kolačića.
Prilagodite željene postavke:
Neophodni kolačići su obavezni da bi se omogućile osnovne funkcije ovog sajta, kao što su obezbeđivanje bezbednog prijavljivanja ili prilagođavanje željenih postavki saglasnosti. Ovi kolačići ne skladište nijedan podatak sa ličnim informacijama.
CloudFlare provides web performance and security solutions, enhancing site speed and protecting against threats.
: developers.cloudflare.com (opens in a new window)
Google reCAPTCHA helps protect websites from spam and abuse by verifying user interactions through challenges.
Analitički kolačići se koriste da bi se razumelo na koji način posetioci ostvaruju interakciju sa veb-sajtom.
Google Tag Manager simplifies the management of marketing tags on your website without code changes.
Funkcionalni kolačići pomažu u izvršavanju određenih funkcionalnosti nezavisnih proizvođača, na primer prikupljanje povratnih informacija ili deljenje sadržaja veb-sajta na društvenim mrežama.
WPForms is a user-friendly WordPress plugin for creating custom forms with drag-and-drop functionality.
Pronađite više informacija: Uvjeti korištenja