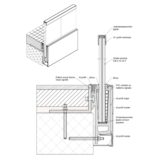
- Način ugradnje: na pod ili bočno
- Staklo: laminirano sigurnosno do 10.10.4
- Fiksiranje: PVC klinovi unutar ALU profila
/ Staklene ograde / Feal OF 100 – Staklene ograde
Sustav aluminijskih staklenih ograda Feal OF 100 dizajniran je da pruži maksimalnu transparentnost, sigurnost i moderan estetski dojam. Zahvaljujući laminiranom sigurnosnom staklu debljine do 10.10.4 mm i inovativnom sustavu učvršćivanja pomoću PVC klinova unutar aluminijskog profila, ovaj sustav osigurava stabilnost i dugotrajnu izdržljivost.
Sustav aluminijskih staklenih ograda Feal OF 100 dizajniran je da pruži maksimalnu transparentnost, sigurnost i moderan estetski dojam. Zahvaljujući laminiranom sigurnosnom staklu debljine do 10.10.4 mm i inovativnom sustavu učvršćivanja pomoću PVC klinova unutar aluminijskog profila, ovaj sustav osigurava stabilnost i dugotrajnu izdržljivost.
Svestrane mogućnosti ugradnje – na pod, bočno ili na parapet – u kombinaciji s bogatim izborom završnih obrada i opcionalnim LED osvjetljenjem čine OF 100 idealnim rješenjem za balkone, terase, hotele, trgovačke centre i luksuzne stambene objekte. Njegov minimalistički dizajn omogućuje neometan pogled, dok robusna konstrukcija jamči sigurnost u svim uvjetima, čineći OF 100 savršenim spojem dizajna i funkcionalnosti.
Pokrenite konfigurator i dizajnirajte prilagođenu kombinaciju prema vašim potrebama
Koristimo kolačiće da bismo poboljšali vaše iskustvo pregledanja, pružili personalizovane oglase ili sadržaje i analizirali naš saobraćaj. Ako kliknete na dugme „Slažem se”, prihvatate našu upotrebu kolačića.
Prilagodite željene postavke:
Neophodni kolačići su obavezni da bi se omogućile osnovne funkcije ovog sajta, kao što su obezbeđivanje bezbednog prijavljivanja ili prilagođavanje željenih postavki saglasnosti. Ovi kolačići ne skladište nijedan podatak sa ličnim informacijama.
CloudFlare provides web performance and security solutions, enhancing site speed and protecting against threats.
: developers.cloudflare.com (opens in a new window)
Google reCAPTCHA helps protect websites from spam and abuse by verifying user interactions through challenges.
Analitički kolačići se koriste da bi se razumelo na koji način posetioci ostvaruju interakciju sa veb-sajtom.
Google Tag Manager simplifies the management of marketing tags on your website without code changes.
Funkcionalni kolačići pomažu u izvršavanju određenih funkcionalnosti nezavisnih proizvođača, na primer prikupljanje povratnih informacija ili deljenje sadržaja veb-sajta na društvenim mrežama.
WPForms is a user-friendly WordPress plugin for creating custom forms with drag-and-drop functionality.
Pronađite više informacija: Uvjeti korištenja