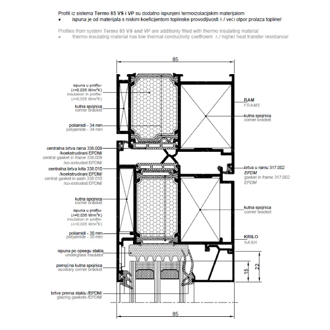
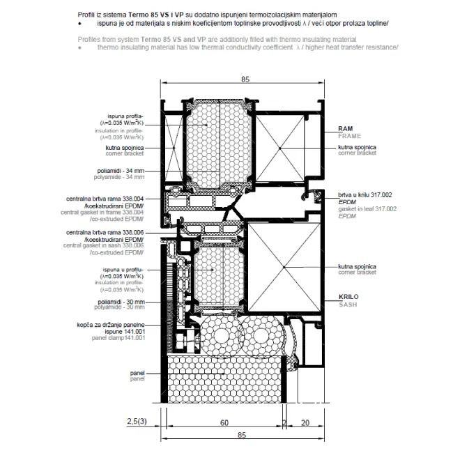
- Sistemska dubina: 85 mm
- Staklo: do 71 mm
- Toplinska izolacija: 0.94 W/m²K
- Zvučna izolacija: do 46 dB
- Propusnost zraka: 4
- Zaštita od provale: do RC3
- Vodonepropusnost: E750
- Otpornost na vjetar: C5
/ Ulazna vrata / ALU ulazna vrata / Feal 85 VP, VS
Feal Termo 85 VS/VP aluminijski sustavi za ulazna vrata nude vrhunsko rješenje za zgrade koje zahtijevaju visoke performanse u energetskoj učinkovitosti, sigurnosti i modernom dizajnu.
Feal Termo 85 VS/VP aluminijski sustavi za ulazna vrata pružaju vrhunsko rješenje za zgrade koje zahtijevaju visoke performanse u energetskoj učinkovitosti, sigurnosti i modernom dizajnu. S dubinom okvira do 85 mm i mogućnošću ugradnje ispuna do 71 mm, ovaj sustav postiže izvrsnu toplinsku i zvučnu izolaciju, s Uw vrijednostima ≥0,94 W/m²K i zvučnom izolacijom do 46 dB.
Robusna konstrukcija omogućuje izradu velikih i teških elemenata, dok testirana otpornost na vjetar, vodu i provale osigurava pouzdanost i trajnost čak i u najzahtjevnijim uvjetima. VS (stakleni ispun) i VP (panel ispun) varijante nude arhitektonsku fleksibilnost, čineći Feal Termo 85 VS/VP idealnim izborom za stambene, poslovne i javne objekte koji traže kombinaciju estetike, sigurnosti i energetske učinkovitosti.
Pokrenite konfigurator i dizajnirajte prilagođenu kombinaciju prema vašim potrebama
Koristimo kolačiće da bismo poboljšali vaše iskustvo pregledanja, pružili personalizovane oglase ili sadržaje i analizirali naš saobraćaj. Ako kliknete na dugme „Slažem se”, prihvatate našu upotrebu kolačića.
Prilagodite željene postavke:
Neophodni kolačići su obavezni da bi se omogućile osnovne funkcije ovog sajta, kao što su obezbeđivanje bezbednog prijavljivanja ili prilagođavanje željenih postavki saglasnosti. Ovi kolačići ne skladište nijedan podatak sa ličnim informacijama.
CloudFlare provides web performance and security solutions, enhancing site speed and protecting against threats.
: developers.cloudflare.com (opens in a new window)
Google reCAPTCHA helps protect websites from spam and abuse by verifying user interactions through challenges.
Analitički kolačići se koriste da bi se razumelo na koji način posetioci ostvaruju interakciju sa veb-sajtom.
Google Tag Manager simplifies the management of marketing tags on your website without code changes.
Funkcionalni kolačići pomažu u izvršavanju određenih funkcionalnosti nezavisnih proizvođača, na primer prikupljanje povratnih informacija ili deljenje sadržaja veb-sajta na društvenim mrežama.
WPForms is a user-friendly WordPress plugin for creating custom forms with drag-and-drop functionality.
Pronađite više informacija: Uvjeti korištenja