- Sistemska dubina: 45 mm
- Staklo: do 39 mm
- Sustav bez termo prekida
- Zvučna izolacija: do 36 dB
- Propusnost zraka: 4
- Vodonepropusnost: E750
- Otpornost na vjetar: C5
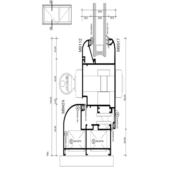
/ ALU stolarija / ALU pregradna vrata / Alumil M9400
Alumil M9400 aluminijski profil dizajniran je za projekte u kojima energetska učinkovitost nije primarni zahtjev, ali su pouzdanost, funkcionalnost i moderan izgled ključni. S ugradbenom dubinom od 45 mm i mogućnošću ugradnje stakla do 39 mm, ovaj sustav pruža dobru zvučnu izolaciju i visoku razinu sigurnosti.
Alumil M9400 aluminijski profil dizajniran je za projekte u kojima energetska učinkovitost nije primarni zahtjev, ali su pouzdanost, funkcionalnost i moderan izgled ključni. S ugradbenom dubinom od 45 mm i mogućnošću ugradnje stakla do 39 mm, ovaj sustav pruža dobru zvučnu izolaciju i visoku razinu sigurnosti.
Zahvaljujući čvrstoći aluminija i stabilnoj konstrukciji, M9400 omogućuje različite konfiguracije ulaznih vrata, od jednokrilnih do dvokrilnih rješenja s nadsvjetlima. Elegantne, ravne ili zakrivljene linije profila nude arhitektonsku fleksibilnost, dok praktičan dizajn osigurava dugotrajnu upotrebu i odličnu ravnotežu između cijene i kvalitete.
Pokrenite konfigurator i dizajnirajte prilagođenu kombinaciju prema vašim potrebama
Koristimo kolačiće da bismo poboljšali vaše iskustvo pregledanja, pružili personalizovane oglase ili sadržaje i analizirali naš saobraćaj. Ako kliknete na dugme „Slažem se”, prihvatate našu upotrebu kolačića.
Prilagodite željene postavke:
Neophodni kolačići su obavezni da bi se omogućile osnovne funkcije ovog sajta, kao što su obezbeđivanje bezbednog prijavljivanja ili prilagođavanje željenih postavki saglasnosti. Ovi kolačići ne skladište nijedan podatak sa ličnim informacijama.
CloudFlare provides web performance and security solutions, enhancing site speed and protecting against threats.
: developers.cloudflare.com (opens in a new window)
Google reCAPTCHA helps protect websites from spam and abuse by verifying user interactions through challenges.
Analitički kolačići se koriste da bi se razumelo na koji način posetioci ostvaruju interakciju sa veb-sajtom.
Google Tag Manager simplifies the management of marketing tags on your website without code changes.
Funkcionalni kolačići pomažu u izvršavanju određenih funkcionalnosti nezavisnih proizvođača, na primer prikupljanje povratnih informacija ili deljenje sadržaja veb-sajta na društvenim mrežama.
WPForms is a user-friendly WordPress plugin for creating custom forms with drag-and-drop functionality.
Pronađite više informacija: Uvjeti korištenja